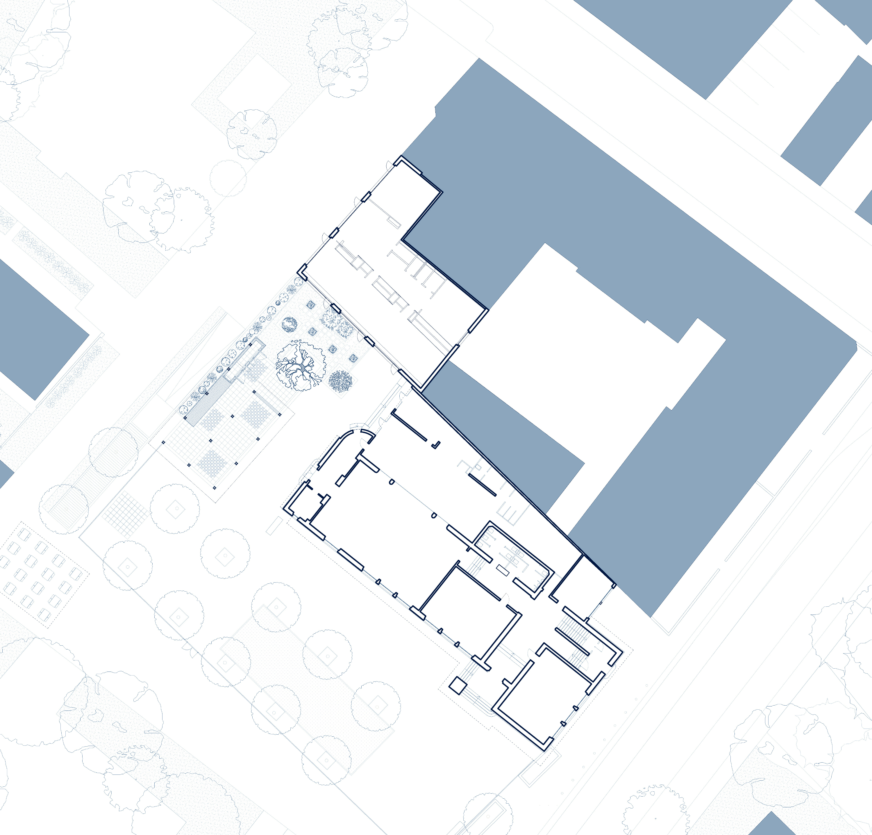
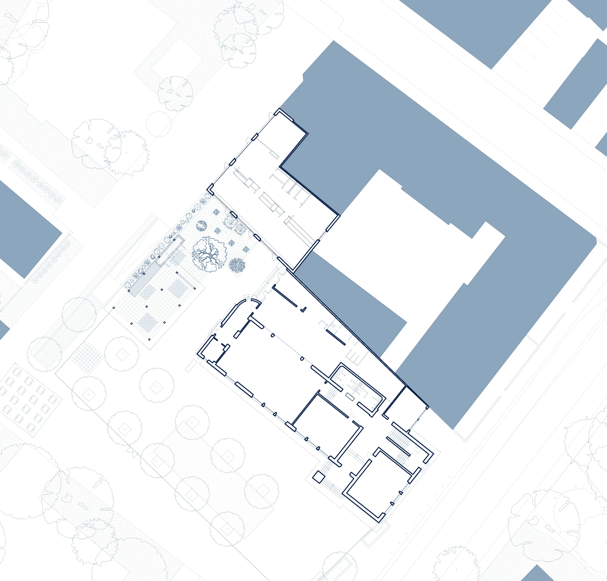
École de la place Favre
Restructuration du préau et construction d’un couvert
Fiche détailléeDescription
Janvier 2022 Début des études
Juin 2023 Autorisation
Juillet 2024 Ouverture du chantier
Mars 2025 Inauguration
Chêne-Bourg